18005577775
攀枝花
[切换城市]
当前位置: 首页 - 全部信息 - 房产 - 出售

诚心出售,家电家具全送,看房方便105万

2019/11/19 19:24:37 浏览:5.76万 来自:未知
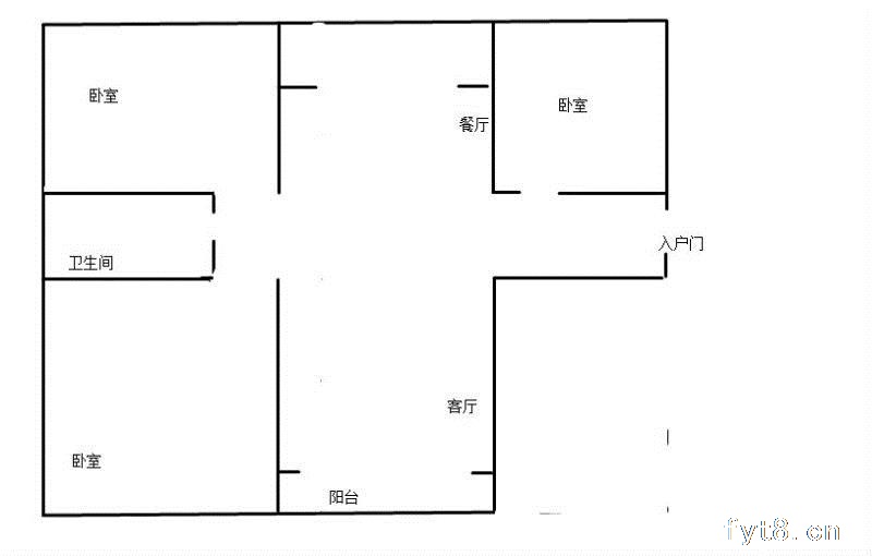
核心卖点 位置:东城新区,主干道位置户型:户型方正,南北朝向,通风好,送大阳台装修:精装修,无偿赠与部分面积产权:产权清晰,70年产权水电:民用水电,通天然气交通:交通便利,出门就是主干道,小区停车位充足配套:周边配套完善,市医院、市政府、学校、公园、大润发广场因有尽有! 业主心态 业主因去外地发展,现出售此住房一套。业主态度良好,房屋手续齐全,价格公道,看房方便,节省您的时间和精力房东诚心出售,欢迎前来看房! 服务介绍 收取服务费:最高10500元(≤1.0%) 三方签约,透明交易,不吃差价本人发布的所有房源真实,为人诚信可靠!对于房子的优缺点决不隐瞒,房源信息真实,给您一个干净真实的购房环境。热情服务!因为专业,所以值得信赖!选择我,选择专业!本人主要负责房屋抵押贷款,受理房产过户,二手房买卖业务,无论价位,户型或周边信息我都可以为您做专业、详细的介绍,为您买卖房屋提供安全的保障,您的满意就是我的动力。不是你没有遇到称心如意的房子,也不是你没有遇到合适的价格,而是没有遇到为你全力以赴的房产经纪人,请选择你我他房产竭诚为你服务 房源编号 房源编号:1097670444179456
诚心出售,家电家具全送,看房方便 诚心出售,家电家具全送,看房方便 诚心出售,家电家具全送,看房方便 诚心出售,家电家具全送,看房方便 诚心出售,家电家具全送,看房方便 诚心出售,家电家具全送,看房方便 诚心出售,家电家具全送,看房方便 诚心出售,家电家具全送,看房方便
联系方式
提示:联系我时,请说明在攀枝花信息网看到的,谢谢!
评论 
还没有人评论此条信息!
最新相关信息:
18005577775
  • Q Q: 23053276
  • 微信: fyhehuo
微信公众号
微信小程序
Copyright © 2025 “攀枝花信息网”版权所有  |  ICP证:皖ICP备17022776号-2  |  技术支持:阳分类信息网(V2021.1)

皖公网安备 34130202000500号

  |  
网页内的所有信息均为用户自由发布,交易时请注意识别信息的虚假,交易风险自负!网站内容如有侵犯您权益请联系我们删除,举报信息、删除信息联系客服